Bạn có bao giờ tự hỏi tại sao một số nhà hàng luôn vận hành mượt mà, tiết kiệm chi phí và đảm bảo an toàn vệ sinh, trong khi những nơi khác lại gặp khó khăn trong việc sắp xếp không gian? Câu trả lời nằm ở việc tuân thủ nghiêm ngặt tiêu chuẩn thiết kế bếp nhà hàng, giúp tối ưu hóa quy trình làm việc và nâng cao trải nghiệm cho cả nhân viên lẫn khách hàng.
Tiêu chuẩn thiết kế bếp nhà hàng theo thực tế vận hành
Một khu bếp đạt chuẩn không chỉ đẹp trên bản vẽ mà phải hoạt động trơn tru trong thực tế, đặc biệt vào những khung giờ cao điểm. Tiêu chuẩn thiết kế bếp nhà hàng hiện đại tập trung vào ba yếu tố cốt lõi: không gian hợp lý, dòng chảy một chiều và hệ thống kỹ thuật đáng tin cậy.
Tiêu chuẩn diện tích và không gian
Diện tích bếp nhà hàng lý tưởng nên chiếm khoảng 30–40% tổng diện tích mặt bằng. Với quy mô 150-200m², khu bếp cần ít nhất 50-80m² để đảm bảo nhân viên di chuyển thoải mái. Nhà hàng nhỏ hơn có thể áp dụng các mức chuẩn phổ biến: 12m² (dưới 30 chỗ), 20m² (50-70 chỗ) hoặc 25m² (80-100 chỗ). Khoảng cách làm việc tối thiểu giữa các trạm là 0,9-1,2m, giúp giảm va chạm và tăng hiệu suất lên đến 25% so với bếp chật chội.

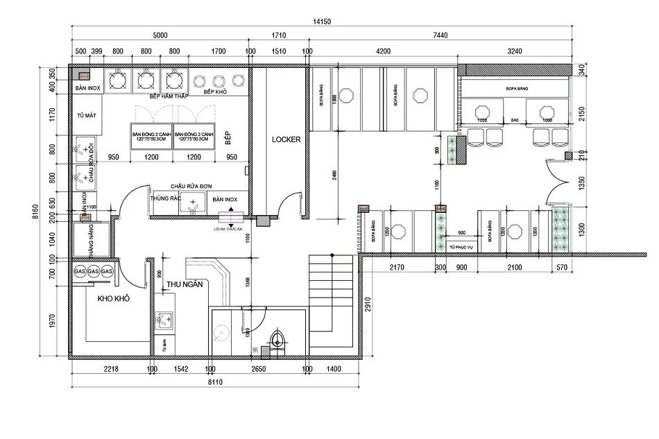
Phân khu chức năng theo nguyên tắc bếp một chiều
Nguyên tắc bếp một chiều (từ khu bẩn → khu sạch → khu ra món) là tiêu chuẩn quan trọng nhất trong thiết kế bếp nhà hàng hiện đại. Cách bố trí này giúp loại bỏ tình trạng di chuyển ngược dòng, hạn chế tối đa nhiễm khuẩn chéo và tăng tốc độ phục vụ.
- Khu bảo quản: Khu này nên đặt gần cửa nhận hàng để rút ngắn thời gian vận chuyển nguyên liệu. Trang bị gồm tủ mát, tủ đông và các kệ inox nhiều tầng. Nhiệt độ bảo quản cần duy trì ổn định: tủ mát 0–4°C và tủ đông dưới -18°C. Diện tích chiếm khoảng 20–25% tổng diện tích bếp, giúp giữ nguyên liệu luôn tươi và giảm thất thoát.
- Khu sơ chế: Đây là nơi rửa, làm sạch và chuẩn bị nguyên liệu trước khi nấu. Cần trang bị bàn inox có lỗ thu rác, chậu rửa nhiều ngăn và các thiết bị hỗ trợ cắt thái. Khoảng cách giữa các bàn tối thiểu 1m để thao tác thoải mái. Sàn nên dùng vật liệu chống trơn để đảm bảo an toàn. Khu sơ chế được bố trí hợp lý có thể rút ngắn đáng kể thời gian chuẩn bị thực phẩm.
- Khu chế biến: Đây là trung tâm hoạt động của bếp. Thiết bị chính thường gồm bếp á, bếp công suất lớn, lò nướng và bàn giữ nóng. Khoảng cách an toàn giữa các bếp gas cần đạt ít nhất 0,8m để tránh cháy nổ và tạo không gian thoáng khi thao tác. Tại khu vực này, tốc độ chế biến quyết định hiệu quả phục vụ trong những giờ đông khách.
- Khu ra món: Khu ra món gồm bàn dài để đặt món, đèn giữ nóng và kệ gia vị. Vị trí nên đặt sát cửa phục vụ để món ăn được đưa ra phòng ăn nhanh nhất. Khoảng cách hợp lý giúp món ăn giữ được độ nóng và hương vị khi đến bàn khách.
- Khu rửa – vệ sinh: Khu này được đặt cuối luồng di chuyển nhằm tránh nước bẩn quay trở lại các khu sạch. Trang bị gồm bồn rửa, vòi sen áp lực mạnh và sàn có độ dốc nhẹ để thoát nước tốt. Nhà hàng có thể sử dụng máy rửa bát công nghiệp để tăng tốc độ làm sạch và đảm bảo vệ sinh tuyệt đối.

Tiêu chuẩn kỹ thuật
Tiêu chuẩn thiết kế bếp nhà hàng nhấn mạnh vào các hệ thống kỹ thuật để đảm bảo an toàn và hiệu quả vận hành, từ thông gió đến chiếu sáng, giúp giảm rủi ro và tiết kiệm năng lượng lâu dài.
- Hệ thống thông gió – hút mùi: Lưu lượng gió tối thiểu 30-40 lần/giờ, chụp hút đặt thấp hơn trần 2-2,2m, vận tốc gió tại miệng hút 0,3-0,5m/s. Ống dẫn phải chịu nhiệt 400°C trong 30 phút.
- Hệ thống gas – an toàn PCCC: Bình gas đặt ngoài trời hoặc trong tủ có thông gió trên-dưới, kết nối cảm biến rò rỉ tự động ngắt van. Hệ thống phun chữa cháy tự động kích hoạt ở 68°C.
- Hệ thống cấp thoát nước: Đường ống cấp nước nóng-lạnh riêng biệt, bồn rửa có lưới lọc rác thô, sàn thoát nước nghiêng 2% về hố ga. Áp lực nước tối thiểu 3 bar để máy rửa hoạt động hiệu quả.
- Tiêu chuẩn ánh sáng: Khu chế biến nên có ánh sáng mạnh khoảng 600–800 lux, khu sơ chế khoảng 400 lux, sử dụng đèn LED chống ẩm với ánh sáng tự nhiên khoảng 4000K để dễ phân biệt màu sắc của thực phẩm, giúp chuẩn bị và nấu nướng chính xác hơn.
Khám phá ngay: 100+ Mẫu Thiết Kế Nội Thất Nhà Hàng Đẹp Nhất 2025

Mô hình bố trí bếp nhà hàng phổ biến
Khi áp dụng tiêu chuẩn thiết kế bếp nhà hàng, việc chọn mô hình bố trí phù hợp với quy mô và loại hình món ăn là yếu tố then chốt, giúp tối ưu dòng chảy công việc và giảm thiểu lãng phí không gian. Mỗi mô hình đều có ưu điểm riêng, từ tính linh hoạt đến khả năng mở rộng, tùy thuộc vào nhu cầu cụ thể của doanh nghiệp.
Bếp dạng dây chuyền một chiều
Mô hình bếp dây chuyền một chiều được bố trí theo dạng hàng dọc, bắt đầu từ khu sơ chế và kết thúc ở khu ra món, đảm bảo toàn bộ quy trình vận hành diễn ra theo đúng một hướng mà không bị chồng chéo. Cách sắp xếp này phù hợp với các nhà hàng quy mô nhỏ đến trung bình, vì giúp rút ngắn thời gian di chuyển của nhân viên, đồng thời tạo điều kiện kiểm soát vệ sinh dễ dàng hơn.
Mô hình này có ưu điểm là chi phí đầu tư thấp, dễ lắp đặt và vận hành. Tuy nhiên, bếp cần đủ chiều dài để tránh ùn tắc trong giờ cao điểm, đồng thời cấu trúc dây chuyền cố định khiến việc mở rộng công suất sau này gặp nhiều hạn chế.

Bếp dạng ốc đảo
Mô hình này bố trí thiết bị theo hàng dọc, từ khu sơ chế đến khu ra món, giúp duy trì quy trình một chiều rõ ràng và tránh chồng chéo trong thao tác. Cách tổ chức này phù hợp với nhà hàng quy mô nhỏ đến trung bình vì rút ngắn quãng đường di chuyển và hỗ trợ kiểm soát vệ sinh hiệu quả. Ưu điểm lớn nhất là chi phí đầu tư thấp và lắp đặt đơn giản, nhưng để vận hành tốt vào giờ cao điểm thì bếp cần có chiều dài đủ rộng để hạn chế tình trạng tắc nghẽn.

Bếp Á và bếp Âu điểm khác biệt trong bố trí
Bếp Á thường bố trí với đầu đốt mạnh, vòi nước làm mát bề mặt, phù hợp xào nhanh món châu Á, chiếm không gian lớn hơn do công suất cao. Ngược lại, bếp Âu đa dạng chức năng như lò nướng, bố trí gọn gàng cho món hầm nướng châu Âu, với chi phí cao hơn nhưng tiết kiệm năng lượng. Sự khác biệt nằm ở vật liệu inox chịu nhiệt và sắp xếp theo phong cách món ăn, giúp chủ doanh nghiệp chọn phù hợp với thực đơn.

Quy trình setup bếp nhà hàng
Quy trình setup bếp nhà hàng cần được thực hiện bài bản để đảm bảo tuân thủ tiêu chuẩn thiết kế bếp nhà hàng, từ khảo sát đến vận hành, giúp giảm chi phí và tăng hiệu suất lâu dài. Việc này đòi hỏi sự phối hợp chặt chẽ giữa chủ đầu tư và đơn vị chuyên nghiệp.
- Khảo sát nhu cầu và công suất phục vụ: Xác định số món trong menu, số lượng khách/giờ cao điểm, phong cách phục vụ (à la carte hay buffet) để tính công suất chính xác.
- Lên bản vẽ bố trí và phân khu: Bản vẽ 2D + 3D chi tiết vị trí từng thiết bị, đường đi điện-nước-gas, dòng chảy nhân sự. Đây là bước quan trọng nhất quyết định hiệu quả vận hành sau này.
- Lựa chọn thiết bị bếp: Ưu tiên thiết bị inox 304 dày 1-1,2mm, thương hiệu có bảo hành dài hạn, tiết kiệm năng lượng cấp A trở lên.
- Thi công, lắp đặt và kiểm tra vận hành: Thi công đúng tiến độ, chạy thử 1-2 tuần với 100% công suất trước khai trương. Điều chỉnh ngay những điểm chưa hợp lý trước khi chính thức hoạt động.

Quy trình setup bếp nhà hàng là giai đoạn phức tạp và tốn rất nhiều thời gian nếu chủ quán tự ôm đồm: từ khảo sát, đo đạc, đặt thiết bị, phối hợp thợ điện – nước – gas, chạy thử đến xử lý hàng loạt phát sinh. Nhiều chủ nhà hàng mất 3-6 tháng vật lộn chỉ để bếp hoạt động ổn định, thậm chí phải đóng cửa sửa chữa ngay sau khai trương. Vì vậy, hợp tác với một đơn vị thi công cửa hàng trọn gói như Gia Long ADV sẽ giúp bạn rút ngắn thời gian xuống còn 4-6 tuần, tránh đau đầu và tập trung hoàn toàn vào việc kinh doanh.
Hãy để Gia Long Adv đồng hành cùng bạn từ bước khảo sát đầu tiên đến khi bàn giao chìa khóa. Với hơn 20 năm kinh nghiệm thiết kế – thi công nội thất showroom, nhà hàng,.. trọn gói không gian kinh doanh, chúng tôi cam kết mang đến khu bếp đạt chuẩn, tối ưu chi phí và phù hợp nhất với mô hình của bạn. Liên hệ ngay hôm nay qua https://gialongadv.com/ để nhận tư vấn miễn phí và báo giá chi tiết trong 24h!
Tìm hiểu thêm: Mở nhà hàng cần bao nhiêu vốn? Chi phí chi tiết
